15年目のモデルハウス
~時がたつにつれて魅力を増す、
カーサの家~
Model house
どう変わっていくのでしょう
新築時の新しさは一瞬。そして、圧倒的に長いのが、その後に我が家で暮らす時間です。
そして当然、さまざまな建材や素材は、時と共に変化していくもの。あなたが建てる住まいの「未来の姿」を、知りたいとは思いませんか?
15年を経てもなお美しいカーサのモデルハウスで、時間とともに変化する住まいの魅力を、ぜひご体感ください。
実は「自宅にしよう」と思って建てたのが、このモデルハウス。その当時から変わらないカーサの思想が、この建物には詰まっています。
私たちが愛着を持って育ててきたこの住まいを、少しでも家づくりの参考にしていただけたら嬉しいです。
無垢の木と
からだにやさしい
自然素材でつくられた
カーサのモデルハウス
モデルハウスは、ここがポイント
-
01
「和」を生み出すLDK
キッチンに立つ視点と、リビングでくつろぐ家族の視点を同じ高さに設定した小上がり。高さを持たせた分、リビングテーブルは掘りごたつにして、ゆったり過ごせる居場所をつくりました。
家族の団欒が自然と生まれるよう、住まい手の暮らす風景を思い描いて設計したLDKです。 -
02
地域に馴染む三角屋根の家
三角に掛けられた屋根。これは、スタンダードな「日本の住まい」のかたちです。屋根面を引き伸ばして生まれる軒や庇(ひさし)は、雨風から住まいを守ります。普遍的で美しい建物は、地域の景観に馴染み、「その場所ならでは」の風情を生み出してくれるものです。 -
03
四季を愉しむ「借景窓」
移りゆく季節や、空模様。変わり続ける自然をダイナミックに取り込む「窓」。カーサでは、四季折々の景色を味わえるようにお庭をつくり、窓を配置します。
ふとした日常に、息を呑むほど美しい風景が飛び込んでくる、そんな感動体験をぜひ味わっていただきたいと思います。 -
04
美しく変わりゆく本物の素材たち
長きにわたって、ずっと美しい住まい。それは、流行ではなく、いつの時代にも存在する「普遍的なもの」でつくられています。それは例えば、無垢の木、塗り壁、土や石など、いずれ地球に還るもの。
使い捨てにならない建築材料は、さまざまなコストを抑える賢い選択です。 -
05
ドイツ基準の心地よい暖かさ
特に体感してほしいのは、自然由来の断熱材や輻射熱暖房(ペレットストーブ)で実現する室内環境。じんわりと身体の芯から心地よく、冬の厳しい寒さも気になりません。足元の冷えが苦手な方は、ぜひ冬のモデルハウスにお越しください。当然、夏も涼しく快適です。
アクセス
-
- モデルハウスの目の前に駐車場完備
-
私たちのモデルハウスは、よりリアルなモデルハウスであるために、実際の暮らしとはかけ離れた大きさでもなく、設備も実際にお客様にご採用いただいている設備を採用しています。
駐車場も、実際のお住まいのように玄関まですぐのところに設けておりますので、ご来場の際にはこちらの駐車場をご利用ください。
多少の余裕もございますので、ご友人やご家族とのご来場の際もご安心ください。
-
- キッズスペースも充実しています
-
代表の渥美は4人の子をもつ父親でもあります。
家づくりを進めていく過程で、お打ち合わせのお時間も、お子様と一緒に楽しんでいただけるようキッズスペースを設けております。
モデルハウスへのご来場やお打ち合わせの際は、どうぞお子様とご一緒にご来場ください。

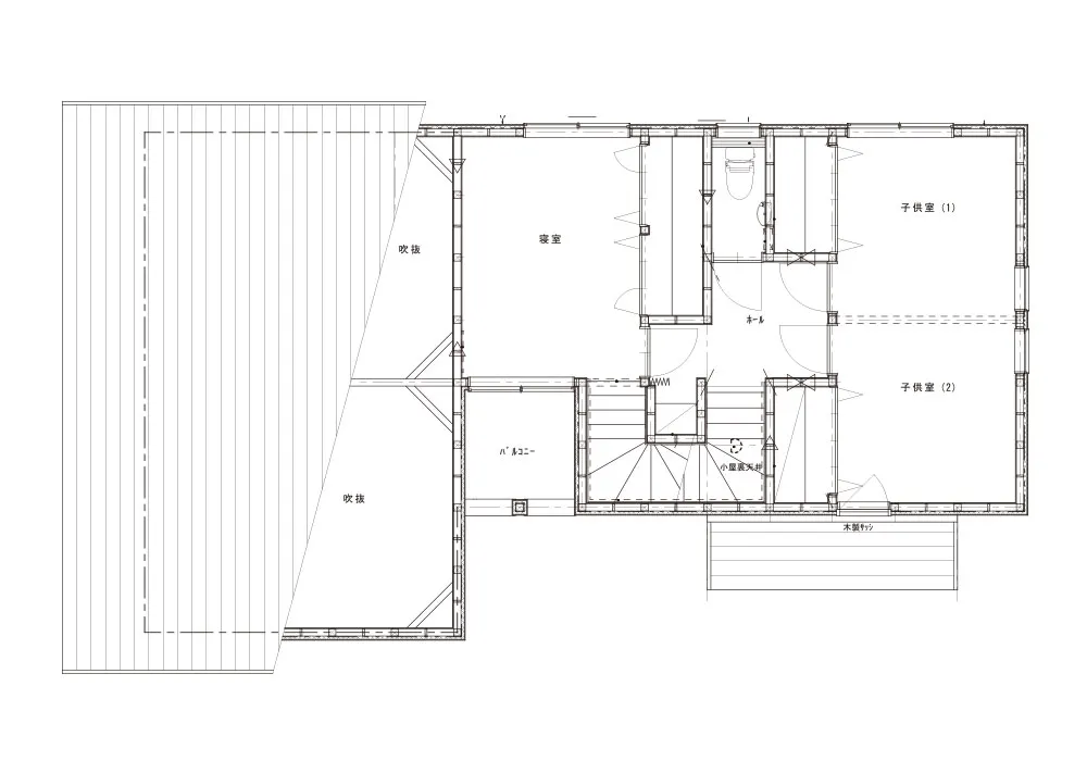
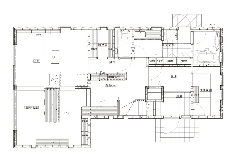
モデルハウスのリアルな間取り
だから、いわゆるモデルハウスのような豪華絢爛な設備も
必要以上に大きな坪数もない、等身大のモデルハウスです。
-
1F
-
2F
だから「家事動線が楽」なこと、「すぐに片付けられる」にこだわりました。そのため行き止まりのない回遊動線で、玄関がいつも綺麗でいられる分離型の玄関収納、掃除道具や食品・ストック品が収納できるパントリーを備えています。
また、家族団らんの場として、日本人になじみのある「掘りごたつ」を選択していることも特徴のひとつです。

モデルハウスを
見学するとわかること
・どんな家にしたいか、現実的なイメージがわきます。
・15年経過した自然素材の家のリアルをご覧いただけます。
・“ちょうどいい”快適な湿度・室温を体感していただけます。
・裸足で歩くと、気持ちよい無垢の質感をお楽しみいただけます。
・代表の渥美は、しつこい営業を一切しないことが良くわかります。
お近くのいいお店
貴重な休日や、大切なご家族との時間の中でカーサにご来社いただく皆様へ、せっかくお越しいただくなら、その道中すらも楽しんでいただきたいと思います。
私たちカーサスタッフのおすすめスポットマップです。ぜひご覧ください。




Facebook
Instagram
YouTube
053-415-8555
LINEで相談
ご相談予約
お問い合わせ
